Uwięzieni w mieszkaniach z powodu błędu urzędnika? Niepełnosprawni czekają na windę
Uwięzieni w mieszkaniach z powodu błędu urzędnika? Niepełnosprawni czekają na windę
Data publikacji: 02 kwietnia 2024 r. 07:55
Ostatnia aktualizacja: 02 kwietnia 2024 r. 18:45
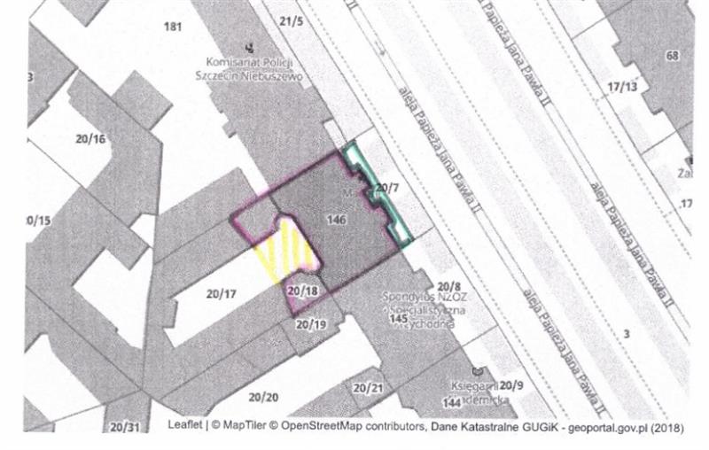
Winda miała powstać we frontowej kamienicy, na jej tylnej ścianie od podwórza, jednak to już działka, która nie należy do wspólnoty właścicieli mieszkań frontowych, ale do oficyn. Fot. Katarzyna LIPSKA-SOKOŁOWSKA
Pięć niepełnosprawnych osób utknęło w swoich domach - są seniorami z ograniczeniami ruchowymi i nie są już w stanie pokonać kilkudziesięciu schodów w wysokiej kamienicy przy al. Papieża Jana Pawła II 38 w Szczecinie, by wyjść na spacer czy do lekarza. Wybawieniem mogłaby stać się winda, o którą zarząd wspólnoty mieszkaniowej zabiega już od półtora roku. Na przeszkodzie nie stoją jednak fundusze na tę kosztowną inwestycję, a zły podział działki kamienicy, który uniemożliwia postawienie szybu windy w podwórzu. Krążą pisma między zarządami wspólnot, ich administracjami i miejskimi urzędnikami - rozwiązań i postępu w sprawie nie widać.
W tej śródmiejskiej trzypiętrowej kamienicy mieszka pięcioro niepełnosprawnych osób, a wśród nich seniorzy w wieku mocno zaawansowanym - 96, 90 i 87 lat oraz kilkoro lokatorów, którzy niedawno skończyli 60 lat. Warto również zaznaczyć, że kamienica przy al. Papieża Jana Pawła II 38 - jak wiele jej podobnych w Śródmieściu - to frontowy budynek oraz dwie oficyny zamknięte w kwadracie podwórza. I dwie wspólnoty mieszkaniowe, swoje udziały w nieruchomości ma
...
Zawartość dostępna dla Czytelników eKuriera
Pozostało jeszcze 86% treści.
Pełna treść artykułu dostępna w eKurierze z dnia 02-04-2024
Skoro nie można zbudować windy to należy się zwyczajnie przeprowadzić do suteryny
Stary
2024-04-02 16:03:43
Nie nadużywałbym epitetu "kretyńskie". Kiedy za niewielkie kwoty sprzedawano mieszkania można było przypisać umowny kawałek gruntu pod zarysem budynku. Potrzebny do obliczenia opłaty za użytkowanie wiecz. Dziś właściciele mieszkań nie mają ochoty na wydawanie pieniędzy na nie wiadomo za co. Kupić chodnik? Miasto zmusiło do wykupu gruntu pod śmietnik. A co z instalacjami podziemnymi? Potem powstają takie dziwolągi jak utrudnianie zakładania ocieplenia, izolacji przeciw wilg. Czy opłaty za reklamy
czas na zmiany
2024-04-02 15:52:03
Za jedno mieszkanie w takiej Kamienicy można kupić 3 mieszkania na parterze lub w bloku z windą .Trzeba sprzedać i się przeprowadzić
cesio
2024-04-02 15:39:27
takie są skutki dokonanego w swoim czasie kretyńskiego podziału działek po zarysach ścian budynków na grunt pod budynkiem należący do wspólnoty i otoczenie należące do gminy. Tu jest problem z windą, ale jakie cyrki były przy ocieplaniu budynków, gdy zarys ocieplenia wykraczał poza grunt wspólnoty a wchodził na grunt gminny :-( . Nowelizacja prawa budowlanego nie pomogła, bo magistrat stawał okoniem, przewlekał postępowanie a na koniec stawiał członkom wspólnoty warunki nie do przyjęcia.
Nosacz
2024-04-02 15:18:53
A ja bym chciał żeby sonsiad dał mi pół swojej działki bo kompostownik chce zbudować a u mnie samą trawka i szkoda mi miejsca
@@@Halina
2024-04-02 14:05:13
Ludzie w kamienicach nigdy nie interesowali się absolutnie niczym co dotyczyło spraw administracyjnych.Jak powstały wspólnoty to sytuacja zmieniła się tylko na gorsze bo ludzie nieświadomie podpisywali i wciąż podpisują wszystko co im się tylko podsunie do podpisania.Wielu na tym korzysta
@@Halina
2024-04-02 12:55:58
Sprzedaż terenów miejskich (a takimi był podwórka) przecież nie była przedmiotem głosowania na zebraniach wspólnot mieszkaniowych. Są to zaszłości sprzed kilkudziesięciu lat, a w międzyczasie prawo dotyczące wspólnot zmieniło się kilkakrotnie.
Stary
2024-04-02 12:35:44
Nie wiadomo kiedy? Księgi wieczyste są jawne. Wystarczy sprawdzić. Kiedyś przypisywano wspólnotom tylko grunt pod zabudową, a podwórka były gminne. Na postawienie pojemników na śmieci trzeba było zawrzeć umowę dzierżawy albo kupna. Ciekawe jest zdjęcie od strony oficynę. Wydaje się że dobudowano jedno piętro. Kiedy? Czy miały zastosowanie przepisy Warunków technicznych dla budynków w szczególności §2 i §54? Ktoś nie planuje upiec pieczeni przy cudzym ogniu?
Stary
2024-04-02 12:00:05
Jak zwykle propaganda epitetowa i niewiele zdrowego rozsądku. Co to jest zły podział działki? Ktoś jest właścicielem, użytkownikiem, dzierżawcą itp. działki na której ma stać szyb windy. Zainteresowani powinni zawrzeć z nim umowę kupna, dzierżawy itp. Niewielu chodzi na zebrania, jeszcze mniej uczestniczy w życiu wspólnoty. W starym budownictwie mieszka wielu starszych ludzi. To tam też trzeba będzie stawiać windy? Gdzie? Sam ledwo powłóczę nogami, ale nie wyobrażam sobie żeby domagać się windy
@Halina
2024-04-02 11:27:06
Skoro masz wiedzę na temat nieprawidłowości przy podziale geodezyjnym to należy to zgłosić do Prokuratury. Skoro ludzie nie czytają co podpisują i nie chodzą na zebrania to potem nie widzą o niczym co ich dotyczy
Zdrowy rosadek
2024-04-02 10:14:56
Za POlityke mieszkaniowa i co za tym idzie odpowiada vice Pani A Szotkowska. Jest władna prostować absurdywymyslane przez swoich podwładnych którzy od za kagencjiKrzystka oduczyli się empati. Zielone POdworeczja i przedogrodki mogą poczekac
Mara
2024-04-02 09:50:34
A jak Was wypadek uwięzi w wózku inwalidzkim w bloku bez windy
Koszty niebagatelne
2024-04-02 09:47:17
Koszt budowy windy to tylko jeden element kosztów.Bieżące koszty utrzymania, koszty przeglądów technicznych, koszty dozoru technicznego, pozwoleń na użytkowanie to wszystko to są ogromne koszty.Pytanie czy wspólnotę na to stać
Halina
2024-04-02 09:44:22
Jak czytam powyższe komentarze to mi ręce opadają. Jakaż znieczulica ale i brak wiedzy. Problem złego podziału działki budynku przy ulicy Jana Pawła nie jest odosobniony. Podobny problem mają Wspólnoty przy Alei Wojska Polskiego. Całe podwórka sprzedano włścicielom lokali użytkowych. Nawet nie wiadomo kiedy. Nikt nie chce wziąć za to odpowiedzialności. A wspólnoty nie mają gdzie koszy na śmieci postawić. Bałagan powstał W latach 80- tych, kiedy masowo wykupowano lokale. Nikt nad tym nie panował.
Rozwiązanie
2024-04-02 09:40:16
Niech sprzedadzą mieszkania i kupią gdzieś na parterze.
do: klemens
2024-04-02 09:31:24
Widać, że znasz to z autopsji, bo jesteś więźniem swojej niepełnosprawności intelektualnej...
klemens
2024-04-02 09:03:18
uwięziła ich niepełnosprawność . Co ma do tego urzędnik ? Niepełnosprawni muszą akceptować swoje ograniczenia .
XXI wiek
2024-04-02 08:47:18
Skoro ktoś po przekroczeniu 65 lat zdecydował ,że zostaje w swoim mieszkaniu na wysokim piętrze bez windy to do kogo pretensje "na starość" ? Można było zamienić się na inne mieszkanie na patrerze albo budynku z windą. A zresztą czy te osoby nie mają rodzin żeby u nich zamieszkać ?
;/
2024-04-02 08:17:48
@komuna- tak jak ci od działki przy urzędzie sie budza jak toi toi stoi
Komuna
2024-04-02 08:00:29
Ludzie w kamieniach nadal żyją w komunistycznej rzeczywistości i myślą że wszystko jest wspólne . Był podział działki to wtedy trzeba było interweniować.No ale 99% osób nigdy nie była na zebraniu
Zgadzam się na przechowywanie moich danych osobowych na urządzeniu, z którego korzystam w formie tzw. plików cookies oraz na przetwarzanie moich danych osobowych pozostawianych w czasie korzystania przeze mnie ze stron internetowych zapisywanych w plikach cookies w celach marketingowych (w tym na profilowanie i w celach analitycznych) przez Kurier Szczeciński sp. z o.o. Więcej w naszej Polityce Prywatności.