Piątek, 14 listopada 2025 r. 
REKLAMA

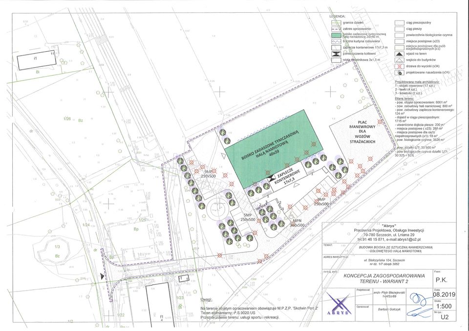
Piłka nożna. Stadion w Skolwinie zmieni oblicze

Data publikacji: 13 czerwca 2020 r. 15:54
Ostatnia aktualizacja: 13 czerwca 2020 r. 19:50
Piłka nożna. Stadion w Skolwinie zmieni oblicze
 

Konsorcjum firm Dorbud i Infra-Port zaproponowały najtańszą ofertę na pierwszy etap przebudowy stadionu w Skolwinie. Oferta konsorcjum Dorbud i Infra-Port opiewa na sumę 4.174.138,59 złotych brutto.

Propozycja okazała się najtańsza w przetargu na wyłonienie wykonawcy I etapu przebudowy stadionu w Skolwinie, a precyzyjniej budowy boiska ze sztuczną nawierzchnią zadaszonego tymczasową halą namiotową wraz z zapleczem kontenerowym i zagospodarowaniem terenu na terenie Obiektu Sportowego Skolwin przy ul. Stołczyńskiej 104.

Łącznie wpłynęło sześć ofert. Nie różnią się one pod względem pozostałych kryteriów wyboru. Wszystkie firmy zadeklarowały skrócenie terminu realizacji inwestycji do 270 dni oraz maksymalną karę umowną za opóźnienie.

Zamawiający, czyli Gmina Szczecin, zamierzała przeznaczyć na wykonanie inwestycji 5.390.000,00 zł brutto, jak podano w protokole. Pierwsze roboty powinny rozpocząć się w przyszłym miesiącu, a zakończyć w kwietniu 2021 roku. (par)

REKLAMA
REKLAMA

Komentarze

Kibic
2020-06-13 18:49:55
Zaczynają tak jak trzeba. Najpierw zaplecze. Podobno konstrukcja trybuny prasowej/vip na Pogoni umożliwia jej łatwe rozebranie. Ma właśnie trafić na Skolwin, jak nie będzie potrzebna na Twardowskiego, czyli max pół roku
Gość
2020-06-13 17:13:09
Szkoda ze od trybuny nie zaczynają
REKLAMA
REKLAMA
REKLAMA